Продається квартира Одеська, Одеса, Приморський, Фонтанская дорога (№ 213-221-257)

Ціна: 57 000 $
Характеристики
| Ціна: | 57 000 $ |
|---|---|
| № об'єкта: | 213-221-257 |
| Кімнат: | 2 суміж |
| Поверх: | 3 / 5 |
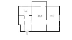
| Площа: | 41 / - / 6 м2 |
| Санвузол: | 1 сумісний |
| Балкон: | балкон |
Адреса: Одеська, Одеса, Приморський, Фонтанская дорога
Продам свою 2 комнатную , новая мебель и ремонт , Аркадия.Продам 2 комнатную квартиру фонтанская дорога остановка петрашевского морская сторона второй ряд домов рядом рынок парковка Аркадия в пешей доступности школы садики детские.Вид обєкта: Вторинний ринок;Тип будинку: Хрущовка;Назва ЖК: фонтанский 51 б;Тип стін: Цегляний;Клас житла: Економ;Планування: Суміжна, прохідна;Cанвузол: Суміжний;Опалення: Централізоване;Ремонт: Євроремонт;Меблювання: Так;Побутова техніка: Варильна панель, Пральна машина;Мультимедіа: Кабельне, цифрове ТБ, Швидкісний інтернет, Телевізор;Комфорт: Балкон, лоджія, Меблі на кухні, Паркувальне місце, Душова кабіна, Гардероб;Комунікації: Асфальтована дорога, Центральна каналізація, Електрика, Газ, Центральний водопровід;Інфраструктура (до 500 метрів): Ресторан, кафе, Школа, Дитячий садок, Ринок, Парк, зелена зона, Дитячий майданчик, Відділення пошти, Бювет, Магазин, кіоск, Супермаркет, ТРЦ, Зупинка транспорту, Відділення банку, банкомат, Кінотеатр, театр, Центр міста, Аптека, Лікарня, поліклініка;Ландшафт (до 1 км.): Море;





















