ЖК Виа Рома! Королева/Инглези! Полноценная 3-комн! 2-контурный котел! (№ 213-123-642)
Ціна: 90 000 $

Інглезі, 2в, Одеса, Одеська, Київський
Характеристики
| Ціна: | 90 000 $ |
|---|---|
| № об'єкта: | 213-123-642 |
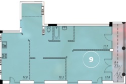
| Кімнат: | 3 розд |
| Поверх: | 7 / 12 ліфт |
| Площа: | 86,7 / - / 17,5 м2 |
| Санвузол: | 1 роздільний |
| Балкон: | балкон |
| Додатково: | новобудова |
Опис
Продам просторную 3-комнатную квартиру в ЖК Виа Рома на Таирова!
В этом комплексе очень много преимуществ:
- одно из самых главных - это 2-конт газовый котел в квартире(Вы сами себе регулируете тепло, и не зависите от отключений света);
- расположен на пересечении Киевского и Малиновского районов;
- в шаговой доступности 63 лицей, 3 детских сада, через дорогу АТБ, стоматология, аптеки, магазины;
- ухоженная красивая придомовая территория, подземный паркинг, отдельное бомбоубежище, автономный генератор.
В квартире 3 отдельные комнаты, просторная гардеробная, просторная лоджия из 2-х комнат, светлая кухня-гостиная 17,5 кв.м
Квартира очень светлая, двухсторонняя.
Очень редкое предложение в этом доме.
Звоните! Подробно отвечу на все вопросы.





